石栏杆石材护栏的基本样式和价格怎么计算
石材栏杆的使用在我国出现的比较早,在古建园林和河道防护中应用比较多,其中青石栏杆更是受人民的喜爱,青石栏杆时尚、漂亮、典雅、环保、抗风化不易变形的性能优点。
青石浮雕栏杆
汉白玉圆形栏杆
汉白玉桥栏杆
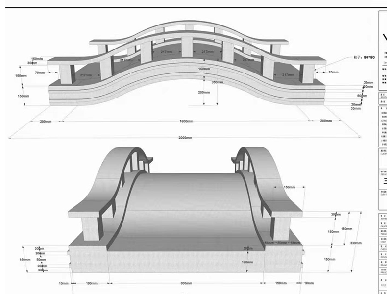
青石整体小桥

石材栏杆的基本组成为:地铺石、立柱、栏板、扶手、花托,这几部分构成,雕刻加工样式不同,有要求栏板双面浮雕加工、还有单面浮雕工艺、还有双面线雕加工、简单的就是一板一柱,柱子的加工也有很多样式有的云纹圆柱头,有的龙纹雕刻,佛教系列的莲花居多,雕刻精细度与深度也有讲究,总体来说只要雕刻工艺要求高价格相应的就高了许多,现在电脑数控雕刻技术的应用,对石材栏杆的雕刻有了很大的提高,雕刻的更加细致了。
青石莲花栏杆
青石仿古栏杆
石材栏杆的价格和石材用料多少有很大的关系,青石栏杆这几年原料价格也不低,要说价格低一点的还是芝麻白石栏杆,汉白玉栏杆价格的价格一直居高,栏杆尺寸大小设计也不一定越大越好,一定要考虑栏杆安装区域的空间面积,来确定栏杆高度、栏板的厚度、还的栏杆的间距,比如河道护栏这样的空间,安全放在第一位,柱子的高度要在1.2米之间,栏板和扶手的高度要在90公分之间。所以说大家在安装选用石材栏杆时一定要注意石材的选择和雕刻工艺的要求。
上一篇:汉白玉栏杆石栏杆的设计安装要求有哪些
下一篇:没有了

2022-05-02 12:13:56